項目介紹
八里湖新區地下綜合管廊PPP項目(九江八里湖新區九園路改造工程)是九江市八里湖新區首個正式落地的PPP項目,也是省、市PPP示范項目,建成后將是九江市區第一條標準的地下綜合管廊。
項目位于八里湖中央商務區內,規劃沿十里河北路北側及文博大道中央綠化帶內建設綜合管廊,全長約2.8公里,工程投資2.8億元。項目分兩部分實施,其中十里河北路綜合管廊全長約1.5公里,主要布置在北側人行道外側區域,為兩倉斷面,分為電力倉及綜合倉。主要入廊管線包括:110KV以上高壓電纜及35KV、10KV中低壓電纜、弱電、供水及中水(預留)。文博大道綜合管廊全長約1.3公里,主要布置在中間綠化帶內,為倉斷面,分別為電力倉、綜合倉及燃氣倉,主要入廊管線為除雨污水外其他全部市政管線。
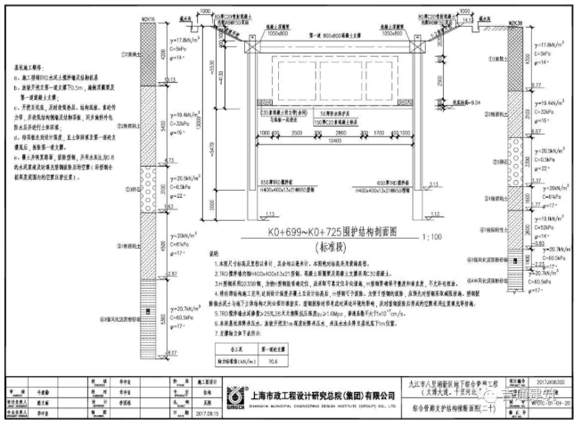
工程地質
該項目主要施工難點為:礫石層較厚,夾較大的卵石,施工中污水管,電纜,軍用光纜等較多,而工期又緊。我司結合了現場實際情況,經過技術人員和施工班組的共同努力,采取多點分斷,按序補強的做法,以增加工作強度,換取施工時間,較好的完成了施工任務,得到業主和總包中國建筑五局的一致好評。
TRD試樁
中建五局江西分公司聯合吉通建筑自九江八里湖新區九園路改造工程及地下綜合管廊建設PPP項目中標后敏捷反應跑步進場,攻堅克難。2017年12月13日TRD支護首段成墻,標志著項目進場取得了首戰勝利。

現場圖片


新聞報道
經過一年多緊張有序的施工后,目前,八里湖新區首個PPP地下綜合管廊項目已進入收尾階段。該項目位于八里湖中央商務區內,全長約2.8公里,工程投資2.8億元。項目分兩部分實施,其中十里河北路綜合管廊全長約1.5公里,主要布置在北側人行道外側區域,為兩倉斷面,分為電力倉及綜合倉。文博大道綜合管廊全長約1.3公里,主要布置在中間綠化帶內,為倉斷面,分別為電力倉、綜合倉及燃氣倉,主要入廊管線為除雨污水外其他全部市政管線。項目建成后將成為九江市區第一條標準的地下綜合管廊。